

相続税対策の不動産のことなら相続専門オフィスにご相談下さい。
ブランズタワー大阪本町の物件詳細
12,980 万円
| 所在地 | 大阪府大阪市中央区南本町2丁目 |
|---|---|
| 交通 | 大阪市営御堂筋線「本町」駅 徒歩4分 大阪市営中央線 「堺筋本町」駅徒歩3分 大阪市営御堂筋線 「本町」駅徒歩4分 |
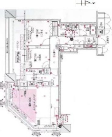
| 専有面積 | 77.90㎡(23.56坪) |
| 間取り | 2LDK |
| 築年月 | 2023年11月(令和5年11月) |
| 所在階/階数 | 9階/43階 |





| 所在地 | 大阪府大阪市中央区南本町2丁目 | ||
|---|---|---|---|
| 交通 | 大阪市営御堂筋線「本町」駅 徒歩4分 大阪市営中央線 「堺筋本町」駅徒歩3分 大阪市営御堂筋線 「本町」駅徒歩4分 |
||
| 価格 | 12,980万円 | ||
| 小学校区 | 中学校区 | ||
| 専有面積 | 77.90㎡(23.56坪) | 間取り | 2LDK |
| バルコニー面積 | バルコニー向き | ||
| その他面積 | |||
| 構造 | RC | 所在階/階建 | 9階/43階 |
| 築年月 | 2023年11月(令和5年11月) | 総戸数 | 300戸 |
| 土地権利 | 所有権 | 用途地域 | 商業 |
| 管理会社 | 株式会社東急コミュニティー | ||
| 管理形態 | 管理員 | 日勤 | |
| 管理費 | 21,400円 | 修繕積立金 | |
| 駐車場 | 駐車場料金 | ||
| その他使用料 | |||
| 現況 | 引渡 | ||
| 取引態様 | 仲介 | 国土法届出 | |
| コメント | 3口システムキッチン(ガス)、床暖房、宅配ボックス 浴室速乾フロア、保温浴槽、追い炊き機能、 ミストサウナ、浴室暖房乾燥 42階 スカイラウンジ、スカイテラス、ゲストルーム ミーティングルーム、フォーカスルーム 5階 フィットネスルーム |
||
| 更新日 | 2025年11月10日 | 次回更新予定日 | 2025年11月24日 |